Privacy Policy Cookie Policy

Home / Sommario - BCMA Architecture srl - Mappa del sito


Capitolo "Architettura Collettiva"

RESIDENZA PER STUDENTI UNIVERSITARI

ISTITUTO MARCHIONDI SPAGLIARDI - a Milano

 

immagini

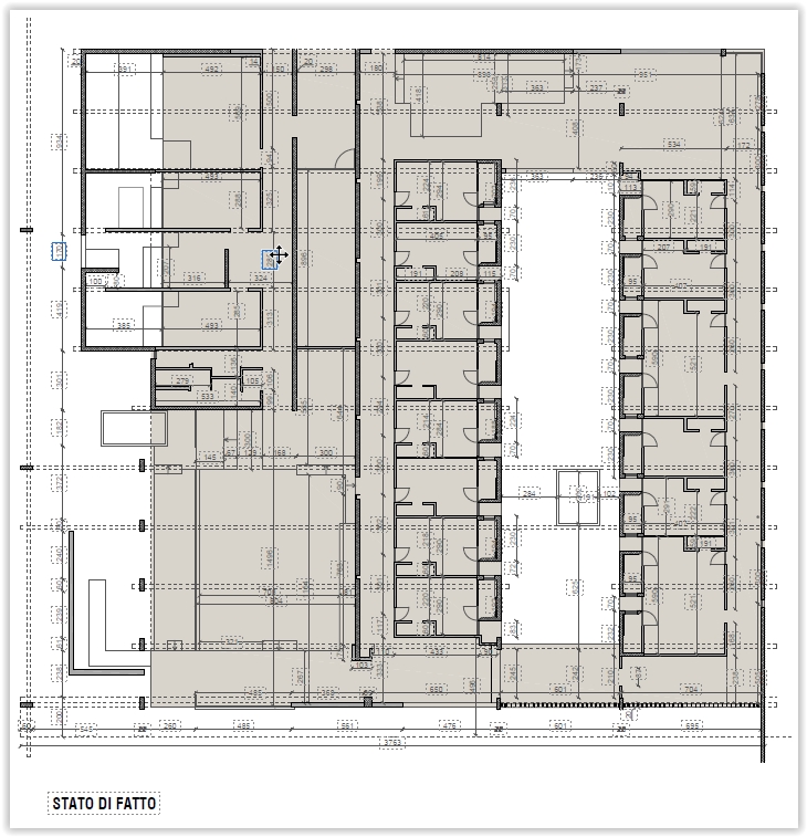
Stato attuale (2026 - gennaio)

 

Stato attuale (2026 - gennaio)

*****

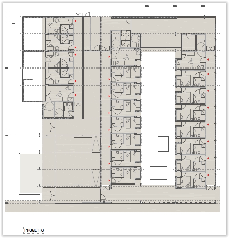
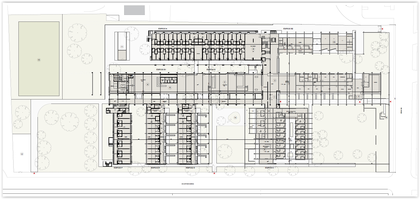
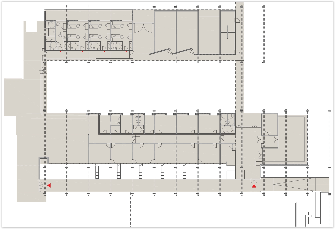
Planimetria di progetto

 

Planimetria di progetto

*****

DATI DI PROGETTO

SUPERFICIE DI PROPRIETA'

mq

20.950

CAMERE SINGOLE

151

CAMERE DOPPIE

8

NUMERO POSTI ALLOGGI 

N°p.a.

167

SUPERFICIE NETTA RESIDENZA

mq

3.007

SUPERFICIE NETTA ATTIVITA' CULTURALI

mq

1.279

SUPERFICIE NETTA ATTIVITA' RICREATIVE

mq

1.593

SUPERFICIE NETTA RISTORAZIONE

mq

408

*****

 

ex foresteria

*****

 

corpi ingresso

*****

 

 

*****

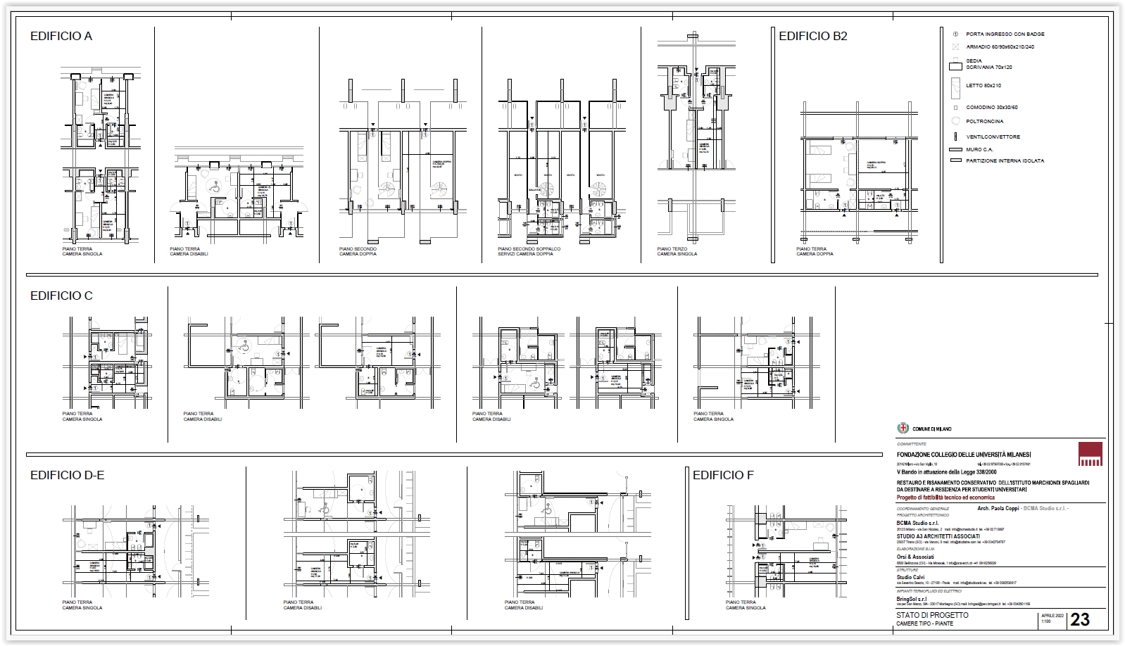
camere tipo

*****

 

Sezioni

 

Sezioni

***** 

 

Render facciata principale

 

Render - vedute prospettiche

 

Render prospettiva

 

*****

Render - Facciata

 

Render interno


TOP

Torna al Capitolo "Architettura Collettiva"

 


info@bcmastudio.it

Home / Sommario - BCMA Architecture srl - Mappa del sito


Webmaster: Ing. Arch. Michele Cuzzoni - © Copyright 2021 - 2026